近日
淮阴区政府发布
淮阴师范学院第二附属小学扩建综合楼工程
项目建议书批复前公示
另有两个小区建设项目批前公示
淮阴师范学院第二附属小学扩建综合楼工程
项目建议书批复前公示

根据《淮安市政府投资项目管理办法(试行)》(淮政发〔2011〕127号)等文件规定,经审核,批复如下:
一、为完善中学硬件设施,满足学生学习需求,原则同意综合楼扩建工程项目建议书(项目代码:2019-320804-83-01-515814)。
二、项目建设地址及占地:项目位于淮阴区北京东路南侧,淮阴师范学院第二附属小学校园南侧(以建设项目选址意见书为准)。
三、项目建设规模及内容:项目拟占地2051.41平方米(以国土部门依法核准的用地规模为准),总建筑面积5862.23平方米(以上部分以规划部门依法核定的建筑功能及建设规模为准)。
四、项目总投资及资金来源:项目估算总投资约1500万元,资金来源根据《淮阴区政府投资项目财政承受能力意见表》文件内容,从教育费附加中安排。
公示期限:2019年4月2日--2019年4月5日
如果对本项目的审批工作有意见和建议,请于2019年4月5日前反馈我委。
联系地址:淮阴区行政审批服务中心发改窗口
联系电话:84966802
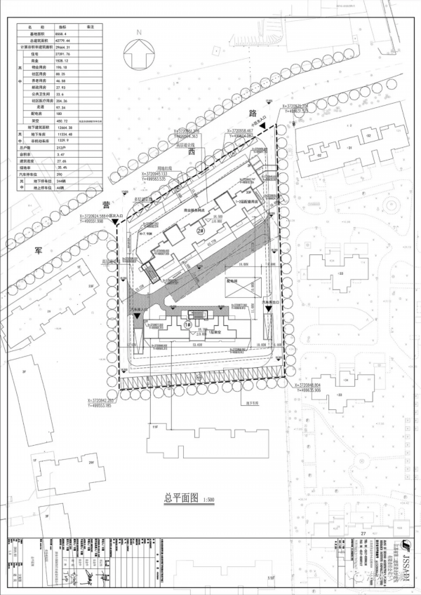
淮安市欢乐颂花园项目建设工程

淮安市保障性住房建设有限公司向我局申报欢乐颂花园项目方案。该项目位于军营西路南侧、淮师文华苑小区西侧。该项目用地面积为8558.4平方米,总建筑面积约42779.44平方米,其中地上计容面积约29664.31平方米。容积率为3.47,建筑密度为27.6%,绿地率为35.4%。具体详见欢乐颂花园项目建设工程设计方案总平面图。现通过项目现场、淮海晚报和淮安市自然资源和规划局网站(http://www.jsmlr.gov.cn/ha/)对该项目的建设工程设计方案总平面图进行批前公示,公示时间从2019年4月5日至2019年4月19日。
如果对该方案有意见或建议,请于2019年4月19日前工作时间内,以书面形式反馈至淮安市自然资源和规划局,或者向我局法规处提出听证申请。
联系人:刘中亚 联系电话:83908012
缪 源 联系电话:83660127
联系地址:淮安市政务服务中心南2楼 邮编:223001
附:淮安欢乐颂花园项目建设工程设计方案总平面图
淮安市自然资源和规划局
2019年4月3日

淮安区文锦城翰林府项目规划方案批前公示

淮安市浩宇房地产开发有限公司申报的文锦城翰林府项目位于淮安区楚州大道东侧、藏军洞路北侧。该项目用地性质为居住用地,总用地面积69145平方米,总建筑面积为221300.39平方米,计容建筑面积为165947.36平方米,容积率为2.4,建筑密度为20%,绿地率为35.10%,设计方案符合规划条件及相关技术规定等要求。
根据相关规定,现对方案进行批前公示(详见总平面图),公示时间为2019年4月3日至2019年4月17日,公示载体为淮海晚报、市自然资源和规划局网站、项目现场。在此期间,相关权益人及有关人士若对方案有异议,请于2019年4月17日前以书面形式向我局反映,或者向市自然资源和规划局法规处提出听证申请。
联系人: 施 颜 缪源
联系电话:0517-85913697 83660127
联系地址:淮安区华西路28号政务服务中心规划局办公室
网 址: http://www.jsmlr.gov.cn/ha/
2019年4月3日

来源:淮网






公安备案号:32010202010067
我要说两句