自首开以来,火热红盘东原印未来一直备受瞩目。内卷当下,东原印未来何以持续破防
、飘红?
其实,除了雨花滨江先发大盘优势和内外公园沉浸式度假环境,IMAX户型亦是持续引爆市场的核心因素之一,地段、环境和产品皆“硬核”实力爆棚,当红不让。
其中,建面约78-107㎡可成长户型根据用户思维精研打造,让你遇鉴幸福人生更完美的答案。
壹|ONE
78㎡臻席小户,南京不宜错过的上车之选

东原未来建面约78㎡户型,不仅全明通透光线好,空间紧凑面积浪费少;更以餐客大通厅、大阳台飘窗等设计,实现个人奢享的最大化。户型空间整体紧凑不紧张,是上车投资的不二之选。
1
全明紧凑户型,拒绝浪费面积
东原印未来注重合理规划格局,不浪费每寸空间,让实用性与品质感在此并存。
比如,建面约78㎡户型不仅实现了全明通透、动静分离,餐客厨、书房卧房卫浴各布局同一动线上,即拉近了彼此的距离,每一寸空间都用在“刀刃”上,从而使整体户型空间紧凑不紧张,让本已稀少的户型更加抢手。
2
餐客大通厅,居家风范气派非凡
餐客大通厅设计,不仅是餐客可互为拓展延伸空间,整体空间通透开阔,势必让来宾光临之际倍感器宇轩昂。
从此,全家聚会,朋友玩乐,不仅不局促,更加舒适。其实,餐客连通的不止是空间,更是幸福的尺度和舒适度,生活的气度和气派,将个人的奢享高光展映。

(建面约107㎡样板间实景图·非实际交付标准)
3
大阳台、大飘窗,阳光美景享用不尽
东原印未来,不止让房成为家的舞台,更成为城市的阳台。
直距长江约800米,舒朗健康规划,内外公园视野,让阳台和飘窗成为风景的画框,加上全景阳光的渲染,温馨美景自然享用不尽。建面约78㎡餐客大阳台、主卧大飘窗,主宾观礼的不仅是阳光美景,还有豪迈的诗情画意。
贰|TWO
89㎡挑战100㎡
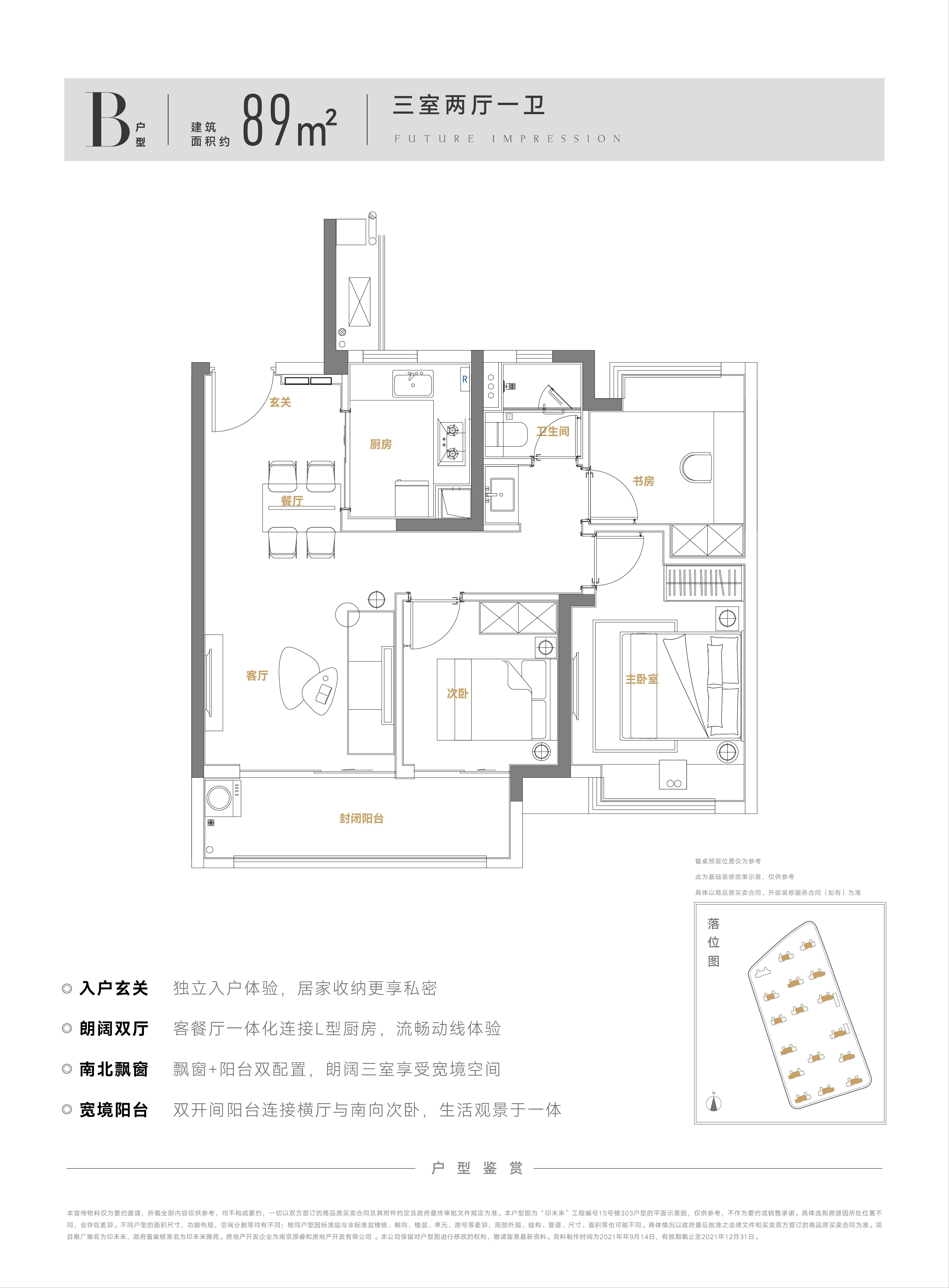
首选婚房高成长性能

臻选爱巢,当然要更好。在实力允许的范围内,享受户型空间生长带来更长的使用周期。东原印未来建面约89㎡舒适三房,尽致满足你对家的更多奢求。全明户型三开间朝南,动静分区动线流畅,餐客大通厅、宽景大阳台,不仅有触手可及的浪漫奢享,更让89㎡面积享受100㎡的尺度,为爱为宝贝,选择更好的婚房。
1
约20.5㎡餐客大通厅
太太的“朋友圈”游刃有余
东原印未来,让约89㎡户型的餐客大通厅做到甚至超越百余方户型的“名场面”。
面积约20.5㎡餐客厅,不仅有极富气韵的纵深感,又实现了餐厅、客厅场域感的相对分离,从而让雅宴与沙龙极富转场的仪式感。无论是太太的“朋友圈”,还是先生的“朋友圈”皆可游刃有余。

(建面约89㎡样板间实景图·非实际交付标准)
2
约5.4米宽大阳台
恰似“空中林肯”的浪漫观礼
阳台对于婚房的成长性十分关键,它不仅是室内空间延伸的“舞台”,更是赏景揽月、培养家人多元兴趣的“观礼台”。
东原印未来建面约89㎡户型,阳台宽约5.4米,几近一辆林肯车的长度。实现客厅与次卧的共享。从此,打开阳光美景的视野,太太的空中瑜伽,宝贝探奇宇宙的遥望,皆可在此从容发挥。
3
三开间朝南
晒饭局,不如全家在此晒阳光
约89㎡户型大面宽、短进深,实现了两室一厅三开间朝南,全家皆可向阳而居,大大提升了居家的舒适度。
阳光,不仅让家充满暖意,烂漫心境,还能促进骨骼对钙质的吸收,对处于成长期的孩子来说十分关键。全家沐浴光晖,更值得拥有。
叁|THREE
107㎡滨江藏品
精致主义品质优选

领潮拥江时代,谁不想拥享一席恒产?东原印未来建面约107㎡滨江藏品,尽致实现你对时间的美满心意。比如,极致面宽犒赏不凡人生;一个套房和一个户型一样,享受南北通透;LDK一体化,尽赏居家的嘉年华;让你为人生典藏醉美的犒赏。

(建面约107㎡样板间实景图·非实际交付标准)
1
约9.8米大面宽,享受人生无限风光
约107㎡户型整体南向9.8米大面宽,不仅实现了两室一厅朝南,更让大面宽、短进深的朝南次卧“躺平”享阳光。清晨,阳光唤醒晨境;夜晚,星空伴入眠;让开始学会独立的下一代,沉浸阳光美景、烂漫星辰的更多宠爱。
2
南北通透大套房,下榻礼遇重重
南北通透的户型常见,南北通透的大套房有多少?通常,这是别墅和排屋才能实现的奢华礼遇。东原印未来以建面约107㎡户型,实现你独属的尊崇不凡。
约107㎡大套房不仅实现南北通透,更将卫浴、衣帽间、卧室、飘窗皆布局于南北动线之上,让可独立起居的大套房时刻充满礼遇。

(建面约107㎡样板间实景图·非实际交付标准)
3
双卫配置,公私分明,尊享便利
双卫配置,不止多一个卫生间这么简单。它不仅让主人独属的尊崇感油然而生,也让家人避免更多尴尬、享受更多便利,让每天的生活更有礼序。
建面约107㎡双卫皆采光通风、干湿分离;淋浴和如厕盥洗区分隔,皆可独立使用,让家人尊享到更多便利。
三大可成长户型,不仅构筑起全南京每位置业者对家的美好想象;更以IMAX级体验,创领时代的需求,启迪未来的生活。户型各有特色,皆不宜错失。目前,东原印未来建面约78-107㎡可成长户型持续热销中,敬请臻藏。






公安备案号:32010202010067