楼市热点:
1、毛坯限价2.5万/㎡!城南再添17栋高层
2、最快8月首开!江核两大纯新盘马上公开
3、江北核心区热盘最快本月收官
◆毛坯限价2.5万/㎡!城南再添17栋高层
近日,中国(南京)软件谷网站发布了东原雨花滨江G38地块规划设计方案批前公示,根据规划显示,项目拟建17栋25-27F高层住宅及相关配套用房。其中,17#楼为25F,为配建的租赁住房约8602㎡;26F住宅有4栋,27F住宅有12栋。据悉,该项目东原将与弘阳合作共同打造。

该地块位于雨花经开区中心位置,紧临扬子江大道、绕城公路和长江滨江风光带,距离地铁S3号线刘村站直线距离约1公里。2021年5月20日,该地块经28轮竞拍,被东原以总价25.9亿元拿下,楼面价15052元/㎡,毛坯限价25000元/㎡。
目前,周边有2盘在售,分别为石林云城和凤汇壹品居。石林云城主力在售6、7、8、24、25号楼,其余楼栋剩少量顶底层房源在售,户型建面为73-168㎡,小高层均价26074元/㎡,低密度多层均价29292元/㎡,精装交付;凤汇壹品居在售A1-5号楼房源,户型建面89、108㎡,销许均价21631-22165元/㎡,可加升级精装包。另外,在售B地块1-3、5号楼,户型建面75、89、108㎡,销许均价21912-22231元/㎡。
◆最快8月首开!江核两大纯新盘马上公开
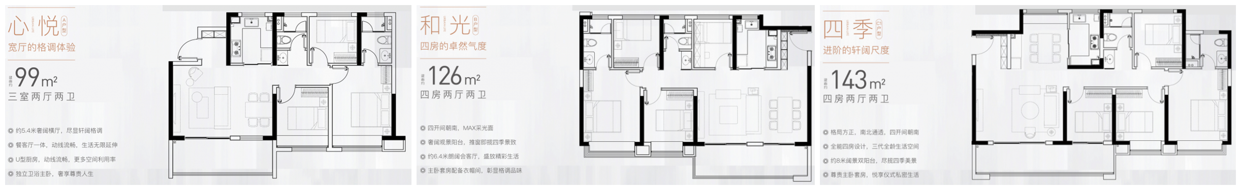
▍江北核心区南工大板块纯新盘金基中北映樾预计本月中下旬公开售楼处和实景示范区,参观需验资300万。目前项目位于金基九月森林项目处的品牌体验中心已公开。

据悉,项目预计最快8月首开1、6、7号楼共254套房源,户型建面约99、126、143㎡(1#、6#楼中间户全部为99㎡,126、143㎡为边户;7#楼为楼王,户型均为143㎡),放风价约3.9万/㎡(含升级精装包价格),预计首付8成。
该项目前身为中北江北核心区G22地块,2020年5月27日,经71轮竞拍被中北以总价19.9亿拿下,楼面价22976元/㎡,自持租赁住房面积2600㎡。该项目由中北和金基联合开发,金基操盘,根据规划打造8栋26F高层住宅,主力户型为约99、126、143㎡。值得一提的是,99㎡户型是目前板块内在售楼盘中的最小面积。
▍江北核心区纯新盘保利里城新区G22项目售楼处预计本周六(7月17日)试公开。
据悉,项目最快8月首开,户型建面128、143㎡,均为4房设计。毛坯限价32000元/㎡,全装修限价34000万/㎡。

该项目与启迪水木滨江仅一路之隔,靠近地铁10号线临江站。项目地块于2020年12月30日,被保利里城以18.9亿拿下,毛坯限价32000元/㎡。根据规划,项目由A,B两幅地块组成,打造5栋21-33层高层住宅,共480套房源,其中三栋住宅面朝长江。
该项目由保利里程和启迪联合开发,住宅部分由保利里程负责。
3、江北核心区热盘最快本月收官
近期江北核心区内楼盘动作频频,除了有多个纯新盘项目有望入市外,也有热盘项目即将迎来收官。
据悉,千江凌云府预计7月底8月初加推最后一栋3号楼共98套房源,户型建面约108、128㎡。前期首开房源还有极少量底楼在售,全装修销许均价33919-34172元/㎡,户型建面108、128、143㎡,带装修交付,另有2200元/㎡升级装修包可选,首付8成。

该项目由金茂、旭辉联合开发,由旭辉操盘,共打造5栋25-26层高层住宅,2梯4户设计。






公安备案号:32010202010067