今年以来,盐城市城南新区积极贯彻落实“两海两绿”发展战略,全力推进南海未来城建设,打造以都市经济为特色的现代服务业生态体系,为现代服务业发展拓展新空间,加快推进城市向南发展步伐。

在盐城市城南新区南海未来城建设工地上,记者看到华师大实验学校等近20个公园绿地、道路桥梁、水利设施、公共配套等项目同时在组织施工,到处是一片繁忙的景观。中国交建南海未来城项目部生产经理王桂松告诉记者:“现在是工程施工的黄金季节,我们每个项目都是倒排工期、挂图作战,具备条件的项目都是分班作业、昼夜施工,抢抓建设进度,今年1-9月份已实际完成投资10亿多元。”


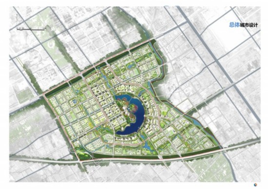
南海未来城是盐城市“五大组团”建设的核心内容,城南新区在新城建设中,坚持“以产定城、以产促城、以产兴城、产城融合”,把培育现代服务业作为未来城建设的着力点,调整优化空间布局和产业布局,划分了环湖商务商贸、智慧康养、大数据拓展等“三大片区”,坚持生活性服务业和生产性服务业并重,努力以大载体、大平台建设,带动大项目、大企业落户,构建以数字经济、商务商贸、文化旅游、现代金融、健康医养等为支撑的现代服务业体系,着力打造产城融合“升级版”,提高城市运营价值。市城南新区建设二局副局长朱玉清介绍,目前项目建设主要围绕“一心一轴一环”,一方面是完善基础设施配套,更重要的是为“三大片区”的产业招商和项目落户服务。目前南海未来城的产业招商已同步全面启动,计划下月在上海举行产业投资专题推介会。


南海未来城的概念性规划采用国际招标方式,由英国BDP公司中标,规划的前瞻性、科学性不言而喻。城南新区规划编研中心主任张圣表示:“我们在研究落实概念规划的同时,学习借鉴了南京、上海、杭州等地新城建设成功做法,吸收了‘紧凑城市’、‘韧性城市’、‘窄带物联城市’等建设的最新理念,强化新材料新技术的应用,形成区域独特领先优势,提高城市运营价值。”
据了解,该项目还打造全国种植规模最大、品种最全、景观最美、观赏期最长的中华海棠园。邀请了上海市政院、河海大学、南京水科院等单位的水利专家,进行专题调研评审,适当增加湖区水深,保证核心湖区水质效果。朱玉清说:“我们项目建设始终保持阳光操作、透明运行,项目建设全过程由市审计局跟踪审计,保证建设工作科学、规范、有序推进”。






公安备案号:32010202010067
我要说两句